
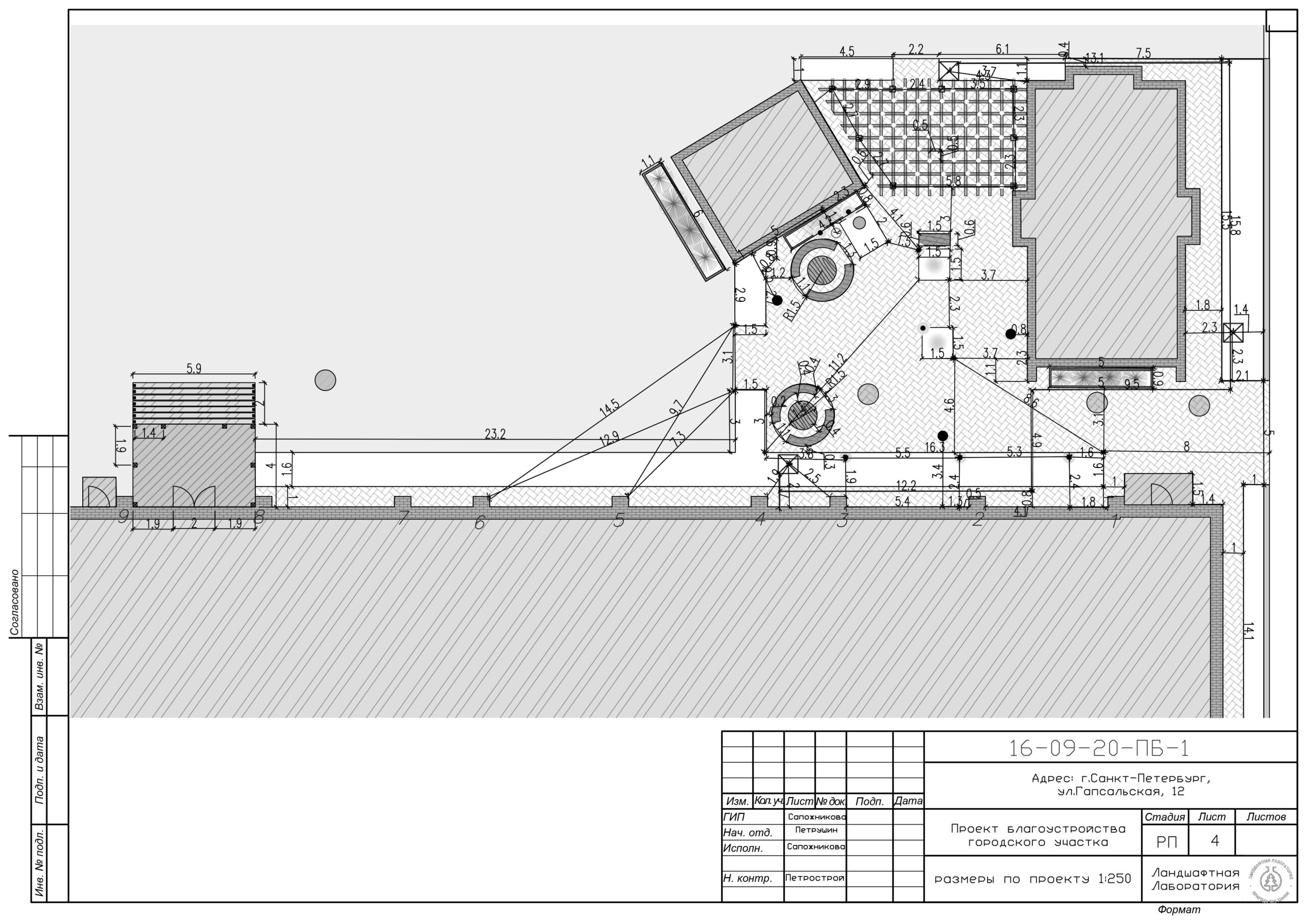
Разработан проект благоустройства территории гостиницы «Балтийская»
О проекте
В этом проекте мы подчеркнули красоту кирпичных строений и объектов на территории, поскольку участок представляет собой промышленный квартал 19 века, ограниченный гостиницей и дорогой.
Трансформаторную будку оформили акварельной росписью с открыточным видом Петербурга в дымке; между техническими объектами построили перголу; сделали лобби, где гости могут сидеть за столиками и на скамейках.
Парковку и лобби разграничили посадкой туй; некоторые растения высадили в грунт, для этого частично демонтировали брусчатку; а также поработали с системой акцентной подсветки здания и деревьев.
Ландшафтная лаборатория Landlabspb выполняет большой спектр работ по ландшафтному дизайну — ландшафтное проектирование, мощение, экспресс проект, проект благоустройства, топографические съемки, посадка деревьев, дренаж участка, посадка растений, уход за садом, автополив, озеленение участка и другие работы по благоустройству.


