
Проект
В плену тропинок милых
Площадь участка
15 соток
Место
Санкт-Петербург, Петергоф
О проекте
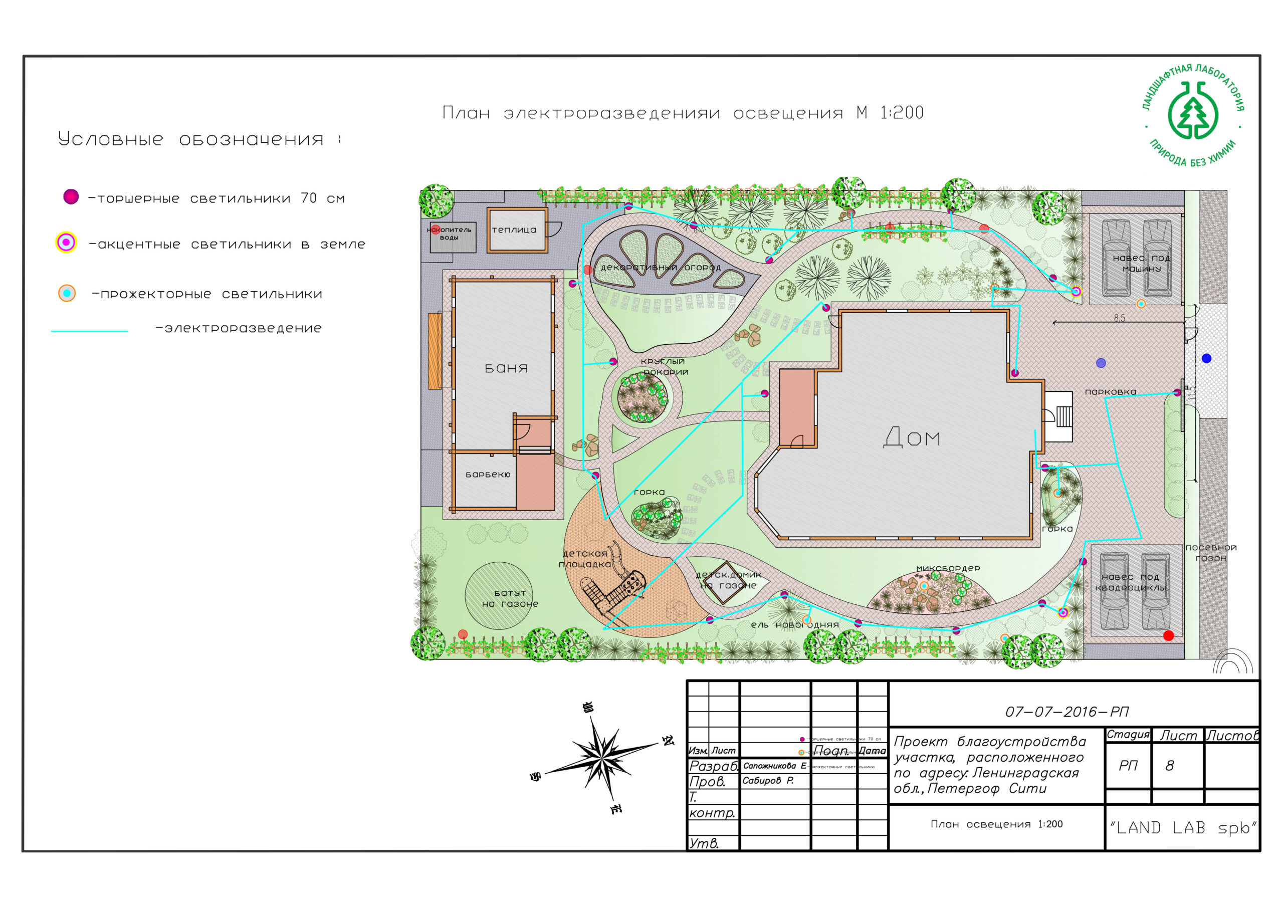
На участке нужно было сделать большую парковку и прогулочную тропинку для мамы с коляской. Так родился проект бесконечной дорожки с акцентным круглым цветником и с петлями вокруг огорода и детского домика. Эта система дорожек позволяет прогуливаться по участку вокруг, не останавливаясь. На каждом повороте можно открыть для себя новые виды и пейзажи участка.
Также мы выполнили работы по геопланированию участка: были сняты земляные массы до полуметра от уровня дома, произведена их замена на песок и плодородный грунт. Проведен дренаж, освещение и автополив, уложен газон, произведены посадки. Бригада плотников собрала грядки декоративного огорода.
Скачать проектную документацию
Фотогалерея
Другие наши проекты
Участок с бассеином и габионами
Место:
Санкт-Петербург, Васкелово














